Loading...
Home
/
Mumbai
/
Flats for sale in Mumbai
/
New Projects in Mumbai
/
New Projects in Vikhroli East
/
Vighnaharta Aradhya Codename Blissful Homes
Vighnaharta Aradhya Codename Blissful Homes
Flats
by
Vighnaharta Group
at
Vighnaharta Aradhya - Codename Blissful Homes, near Adi Arogyam Hospital, Kannamwar Nagar I, Vikhroli East, Mumbai, Maharashtra, India
RERA
PR1180002500873
Agent RERA - A51700000043
INR
48.82 Lacs
Onwards
Brochure
Contact Seller
RERA QR
Photos
Zero Brokerage
Best Price Guarantee
Zero Brokerage
Best Price Guarantee
INR
48.82 Lacs
Onwards
Configurations
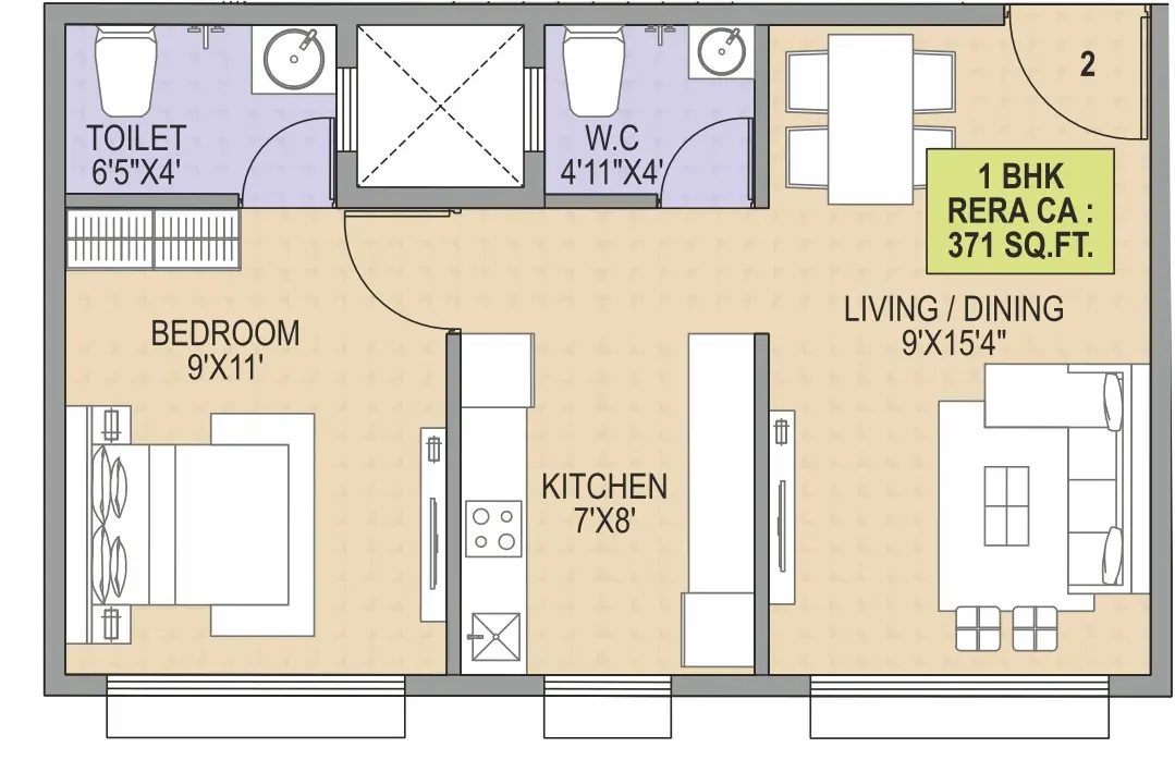
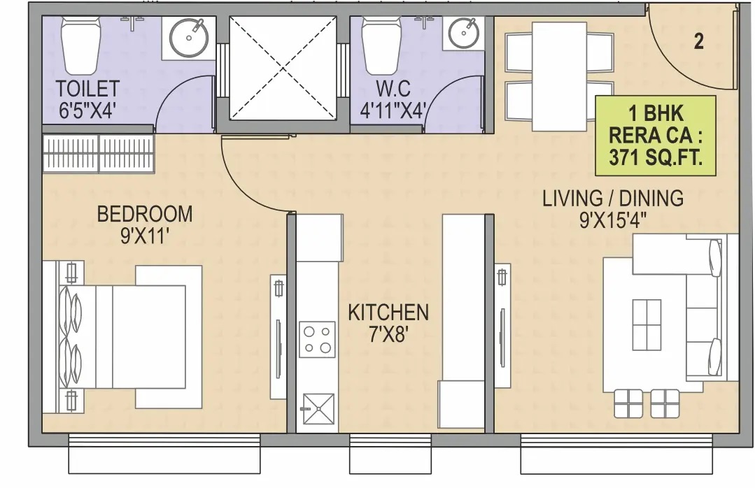
1 BHK
Possession Date
Dec 2027
Built up Area
On request
Carpet Area
237 - 426
Sq.ft
Sq.ft
Sq.yrd
Sq.mtr
Acres
Min. Price per Sqft.
INR
20.6 K per Sqft.
Schedule a Visit
Overview
Configurations
Amenities
Payment Calculator
Bank Offers
Developer
Nearby Projects
Similar Projects
FAQs
Locality
https://maharera.maharashtra.gov.in/
PR1180002500873
Scan QR code to view RERA details